Cóndor Depot 1, ofrece espacios independientes para satisfacer las necesidades empresariales e inmobiliarias de logística, almacenamiento y desarrollo productivo. Galpones para PyMEs, con seguridad y servicios.
Ubicación: Ramos 802, Fisherton, Rosario; a metros de Mendoza con rápidos acceso a Av. Circunvalación y Autopista Rosario – Córdoba. A metros del Mercado de Concentración, Aeropuerto Rosario Islas Malvinas, y los barrios residenciales Cóndor Tierra Nueva, Los Pasos, Carlos Pellegrini, y barrios de Funes.
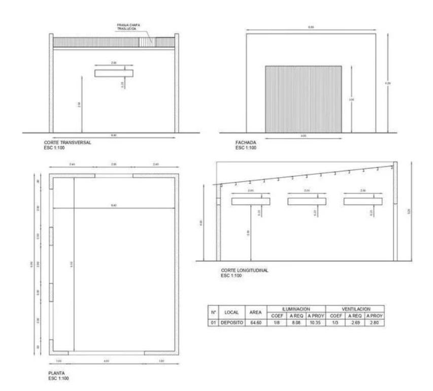
Descripción de la unidad:• Cuenta con 24 unidades divididas en 2 etapas.• Complejo cerrado monitoreado con videovigilancia.• Terminaciones: piso de hormigón llaneado, paredes de ladrillo con revoque y material de frente, color gris, techo de chapa a 1 agua.• Sectores independientes de carga y descarga.• Servicios: luz eléctrica, gas, sanitarios, estacionamientos propios y de cortesía, sistema de videovigilancia.• Superficies: unidades desde 60 m2 hasta 1.500 m2, con altura de 5m.
ENTREGA INMEDIATA.-
Comparar listados
Comparar